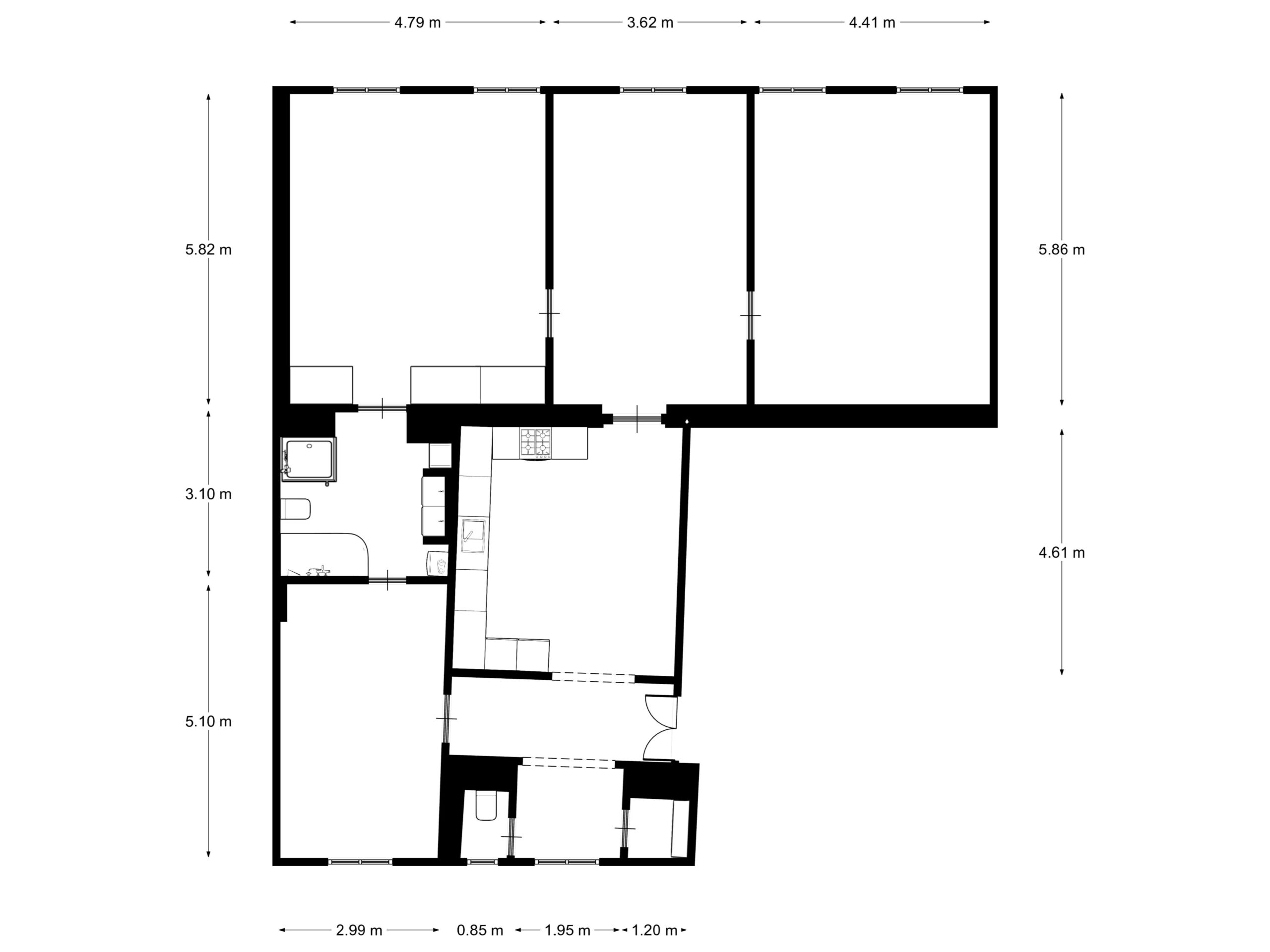
Pokud hledáte něco opravdu speciálního s neopakovatelnou atmosférou a v perfektní lokalitě, právě jste našli. Byt 4+1 ve 3. nadzemním podlaží klasického cihlového činžovního domu v pražských Holešovicích vás určitě osloví.
Jednotka prošla kompletní rekonstrukcí. Všechny zásadní stavební práce jsou hotové, na nového majitele zbývají již jen drobné interiérové prvky, které však mohou být důležité pro dotvoření celkové atmosféry v bytě. Prodávající věnovali velkou pozornost tomu, aby rekonstrukce respektovala ceněné dobové prvky a energii v bytě to jednoznačně prospělo. Původní dveřní obložky, teraso ve vstupní hale a salonku a kvalitní repasované parkety a také nová špaletová okna s izolačními dvojskly – to vše dělá z tohoto bytu výjimečné místo pro váš budoucí domov.
Byt je vyklizený a připravený pro okamžité stěhování nových obyvatel. Pro větší představu možného budoucího uspořádání jsme do prezentace přidali i návrhy interiérového zařízení. Finální řešení však bude samozřejmě na nových majitelích. Dispozice 4+1 umožňuje variabilní uspořádání a dává novým majitelům řadu možností jak byt efektivně využívat podle vlastních preferencí.
Bytový dům je dobře udržován a SVJ se o něj aktivně stará. V posledních letech došlo k rekonstrukci a opravě střechy, stoupaček a rozvodů plynu v domě. Tento rok se plánují investice do společných interiérových prostor a nové rozvody elektřiny v domě.
Lokalita pražských Holešovic patří dlouhodobě k nejoblíbenějším částem Prahy. Místní využívají ideální kombinace plné občanské vybavenosti a perfektní dostupnosti do zbylých částí metropole, tak i nepřeberného množství parků, sadů a zahrad. V rámci několika minut dojdete pěšky do Stromovky či na výstaviště. Pokud se vydáte opačným směrem, narazíte na Letenské sady. Holešovice zkrátka nabízí vše, co si k životu v Praze jen můžete představit.
V případě zájmu o více informací nás neváhejte kontaktovat. Těšíme se na viděnou na prohlídce.




