Zájemcům o krásné rodinné bydlení nabízíme ke koupi moderní novostavbu 5+kk z roku 2020 s nádhernou zahradou, samostatnou garáží a dalším příslušenstvím.
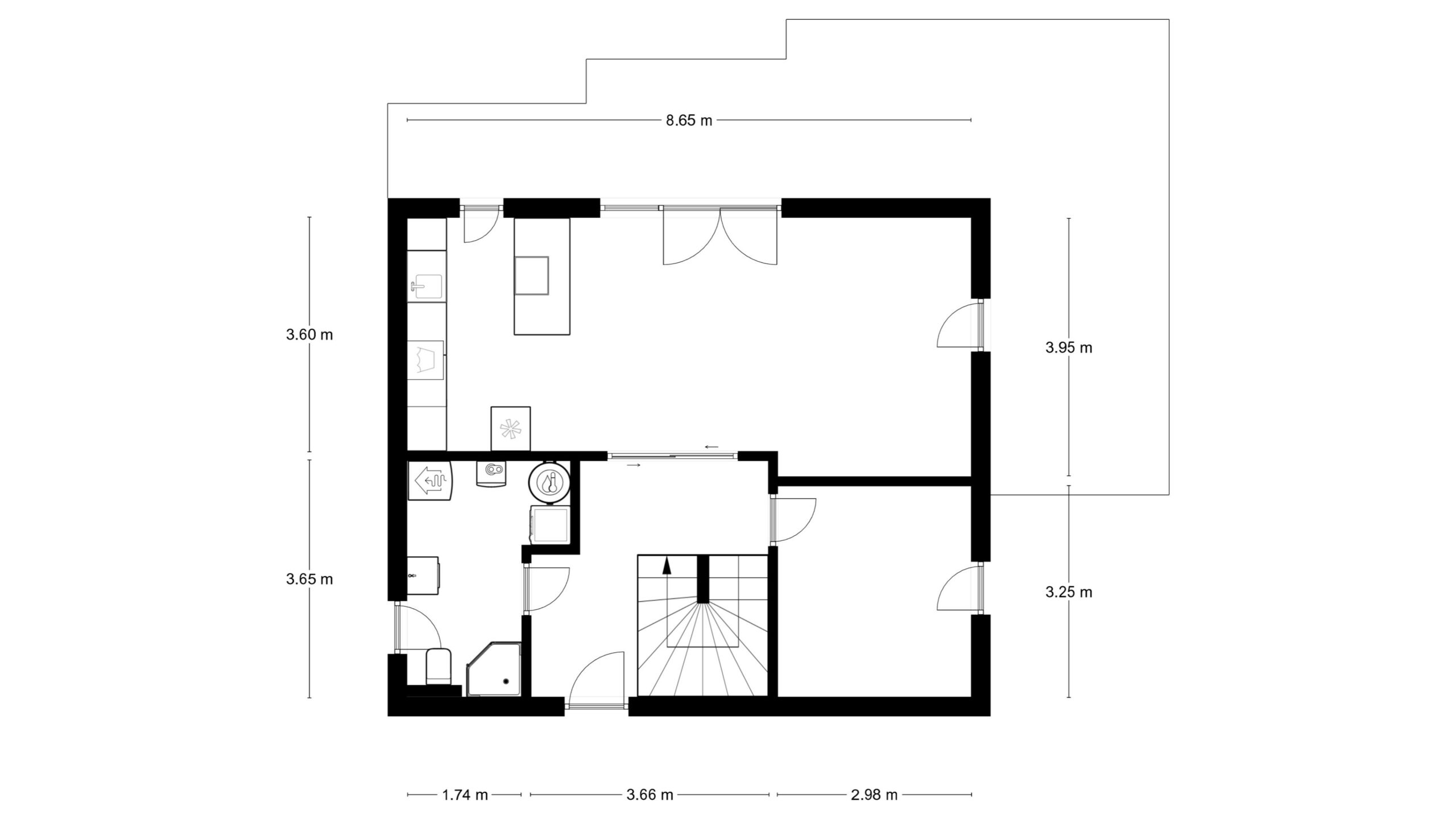
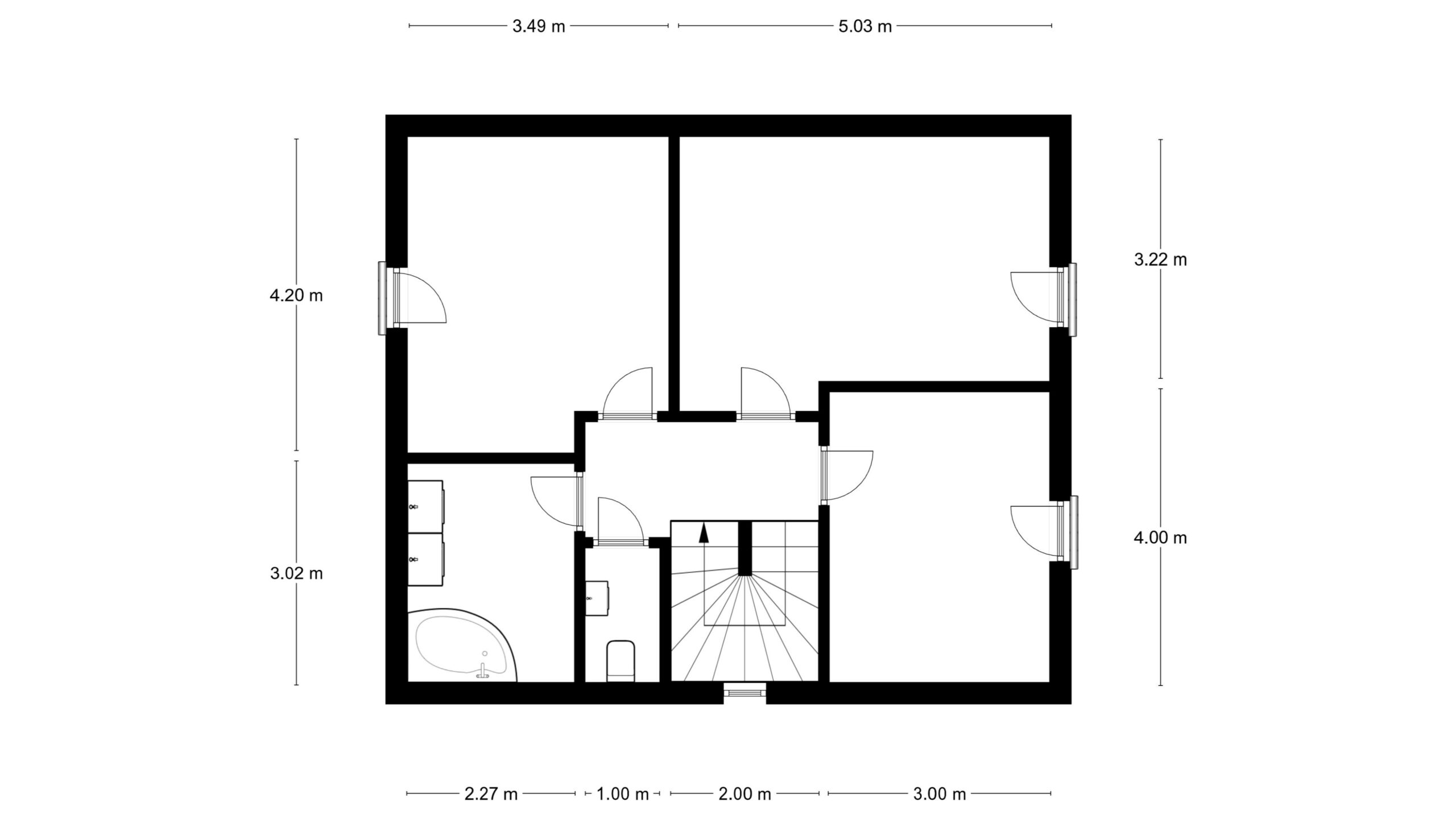
Dům poskytuje dostatek prostoru i pro větší rodinu. V přízemí se nachází hlavní obytná místnost, srdce domu, což je obývací pokoj s kuchyní a vstupem na terasu a do zahrady. Budoucí majitelé mohou využít také místnost, kterou lze zařídit jako hostovský pokoj či pracovnu, a první ze dvou koupelen s WC. V patře jsou k dispozici další tři ložnice, samostatná koupelna a WC.
Dům se pyšní nejlepší energetickou třídou a díky moderním technologiím je šetrný k životnímu prostředí i k vaší peněžence. Rekuperace, tepelné čerpadlo, okna s izolačními trojskly i venkovní rolety zajišťují nejvyšší možný komfort života ve vašem budoucím domově.
A co zahrada? Ta vás chytne za srdce a už nepustí. Byla navržena s rozmyslem již na začátku stavby a je to znát. Díky nadstandardní výměře 1106 m² je kolem domu dostatek místa na vše, co k životu potřebujete. Za vjezdovou branou je místo na zaparkování aut vašich přátel či členů rodiny, přičemž stále máte k dispozici parkovací kapacitu v samostatné garáži. Velmi vítaným bonusem je prostorný zahradní domek, kam můžete pohodlně uložit veškerou zahradní techniku a ještě dost místa zbude.
Kolem domu se rozkládá do posledního detailu vyladěný zahradní ráj. Na své si přijdou všichni členové rodiny, od nejmladších po rodiče. Je zde prostor pro milovníky zahradničení i pro požitkáře, kteří si rádi užijí skleničku dobrého pití a pohled na večerní oblohu. Zkrátka, co si zde budete přát, to se vám tu vyplní.
Lokalita Pod Zdenkou i stejnojmenná ulice, kde se dům nachází, je nově vybudovaná a zasíťovaná část Nového Jáchymova. Vyrostla zde nová zástavba, která respektuje podmínky CHKO Křivoklátsko. Za poslední roky zde vznikla příjemná komunita, která nyní čeká na nové sousedy.
Nový Jáchymov nabízí základní občanskou vybavenost, například první stupeň základní školy máte jen pár minut pěšky od domu. Cesta vede klidnou ulicí, takže ji zvládnou i děti samy. Další služby jsou pak v okolních obcích nebo v Berouně, který je 10 minut autem. Okolí obce je pravou esencí půvabné přírody Křivoklátska. Hluboké lesy, rybníky a spousta turistických i cyklistických tras. A pokud místo přírody vyhledáváte pracovní a kulturní příležitosti, které nabízí Praha, žádný problém. Cesta vám zabere podle zvolené trasy přibližně 35 minut.
V případě zájmu o více informací a konkrétní termín prohlídky nás neváhejte kontaktovat. Těšíme se na vás.



