Zájemcům, kteří hledají opravdu kvalitní bydlení v atraktivní lokalitě, nabízíme byt 3+kk s terasou, garážovým stáním a sklepem.
Jednotka se nachází v 2. nadzemním podlaží novostavby z roku 2018. Bytový dům je členitý a v jednotlivých sekcích má rozdílný počet podlaží. Jednou z výhod je určitě i to, že nabízený byt ani pod sebou ani nad sebou nemá žádné sousedy – tedy klid a soukromí je zajištěno.
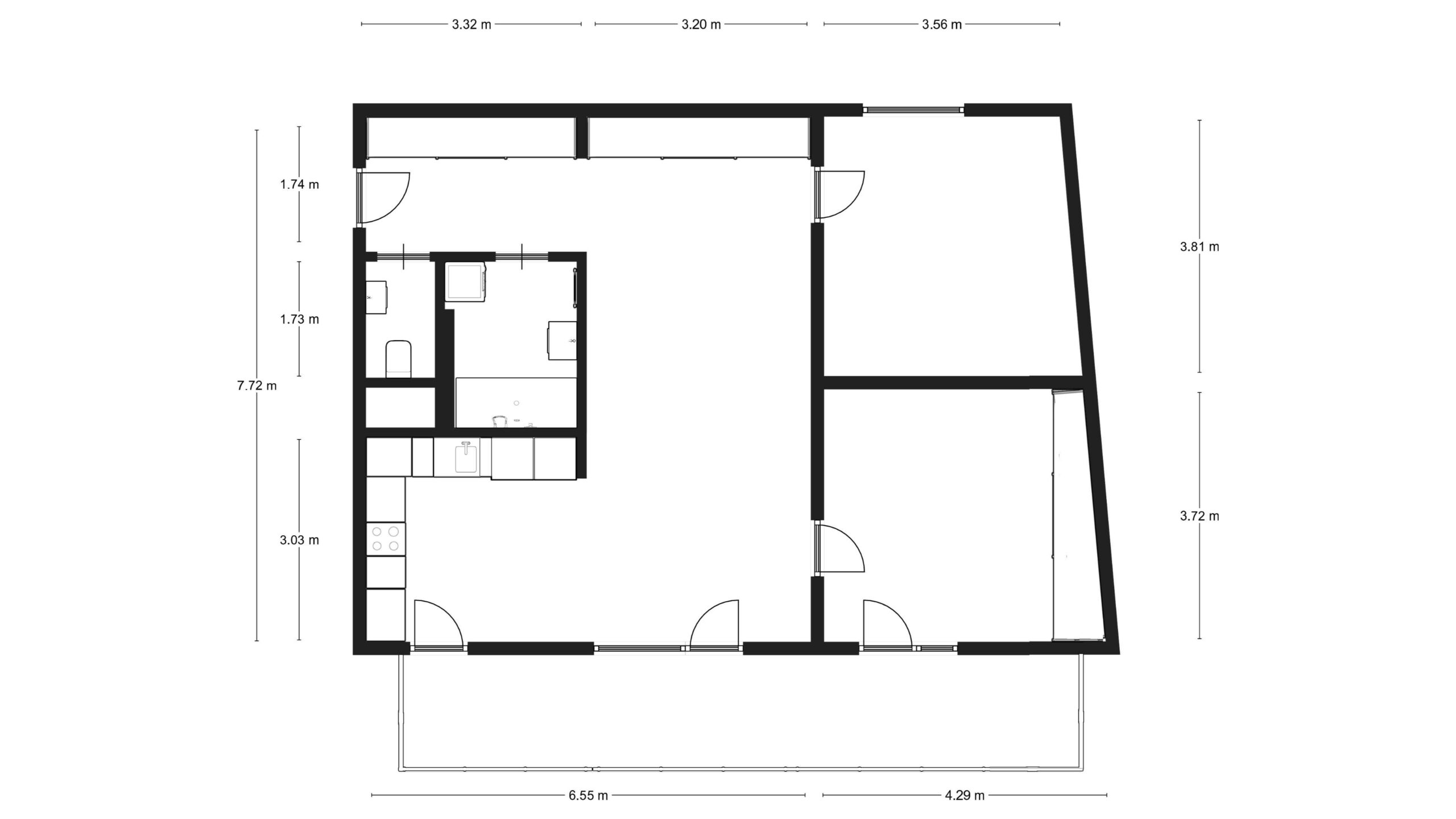
Samotný byt má praktickou dispozici 3+kk. Hlavní částí je prostorný obývací pokoj spojený s kuchyňským koutem. Z kuchyně, obývacího pokoje a jedné z ložnic je vstup na západ orientovanou terasu. Z druhé ložnice můžete naopak ráno pozorovat východ Slunce. Dále byt disponuje koupelnou a samostatnou toaletou.
Developerský projekt U Starého mlýna patří k tomu nejlepšímu, co se v Uhříněvsi v posledních letech postavilo. Odráží se to mimo jiné i v kvalitě zařizovacích předmětů, moderních technologií, které výrazně navyšují pohodlí a komfort všem, kteří zde bydlí a neotřelého interiérového designu.
Vinylová vytápěná podlaha, klimatizace, smart osvětlení Philips HUE a mnoho dalšího na straně vybavení a elegantní kombinace betonové stěrky a dřevěných obkladů na straně druhé. Bonusem je pak integrovaná vinotéka, kterou ocení všichni milovníci vína. To vše a mnoho dalšího z tohoto bytu dělá něco výjimečného. Praktickým doplňkem je garážové stání v suterénu budovy a sklep.
Uhříněves je oblíbenou a dynamicky se rozvíjející lokalitou. Plná občanská vybavenost je k dispozici jak přímo v místě (MŠ přímo u domu, ZŠ do 3 minut chůze) , tak samozřejmě i dále v Praze. Díky perfektnímu vlakovému spojené se dostanete do centra Prahy za 20 minut. Dalším benefitem okolní příroda a tedy i řada možností např. k pěším výletům či cykloturistice.
V případě zájmu o více informací nás neváhejte kontaktovat. Těšíme se na prohlídce.

