Zájemcům o možnost rekreace v překrásné přírodě v blízkosti Slapské přehrady nabízíme tří podlažní chatu s vlastním pozemkem.
Chata se nachází v chatové osadě Sladovaře a byla postavena v 70. letech a to velmi pečlivě a poctivě. První dvě podlaží jsou zděná a poslední dřevěné. Po celou dobu užívání bylo o vše velice precizně pečováno a nový majitel se tak nemusí obávat velkých vstupních investic.
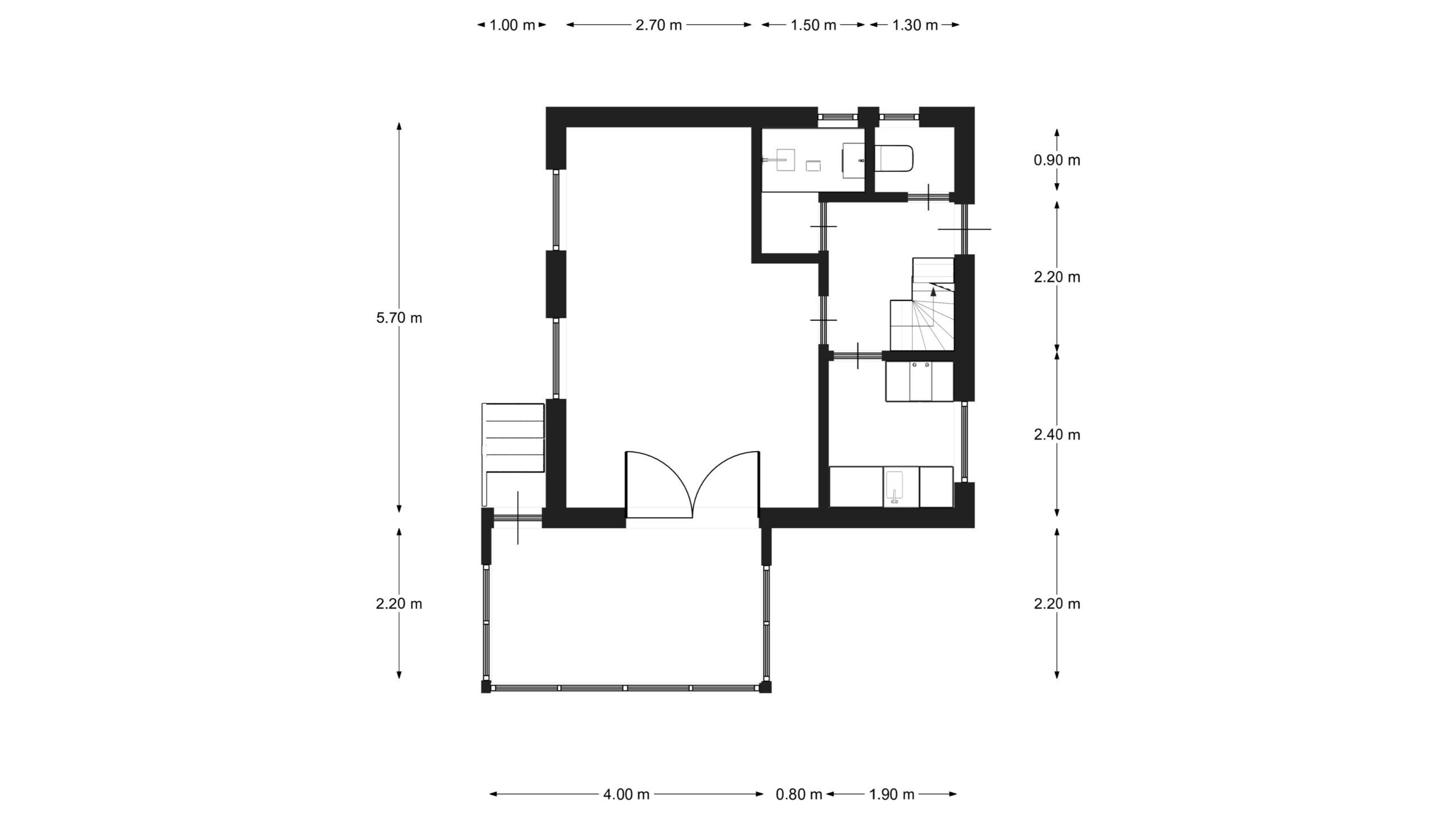
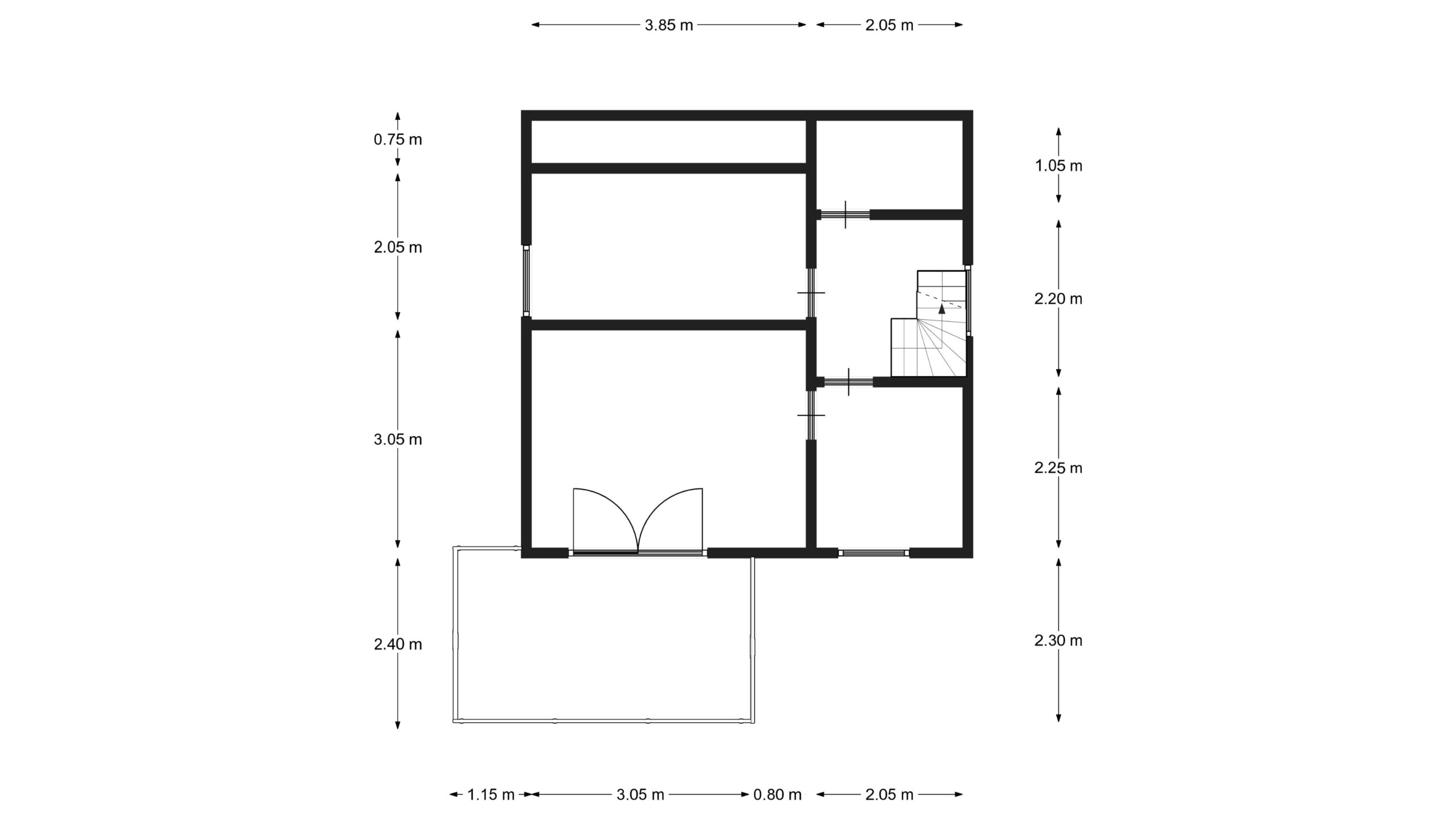
V částečně zapuštěném 1. nadzemním podlaží, najdete garáž a technické zázemí (dílnu). Ve 2. nadzemním podlaží pak kuchyni, sociální zázemí (WC a prostor pro koupelnu) a zejména hlavní denní místnost v podobě jídelny, prostorného obývacího pokoje s krbem a nádhernou verandu s jedinečným výhledem do okolí. V podkroví jsou pak další tři pokoje.
Chata je napojena na elektřinu a na sezónní vodovod (cca Duben – Listopad) z chatové oblasti. Odpady jsou svedeny do jímky. Zahrada kolem chaty je pečlivě založená a udržovaná. Jsou na ní okrasné květiny i užitkové keře a stromy.
Základní občanská vybavenost je v nedaleké obci Buši. V okolí přehrady však najdete vše, co ke spokojenému odpočinku potřebujete. Vodní nádrž je samozřejmě velkým lákadlem, ale i bezprostřední okolí chaty vás jistě okouzlí. Naprostý klid a dostatečně velká zahrada pro jakoukoli zábavu si budete přát. V případě zájmu o více informací nás neváhejte kontaktovat. Těšíme se na vás.



