Zájemcům o bydlení v cihlovém domě v lokalitě pražských Strašnic nabízíme zajímavý byt v Přetlucké ulici u základní školy Olešská.
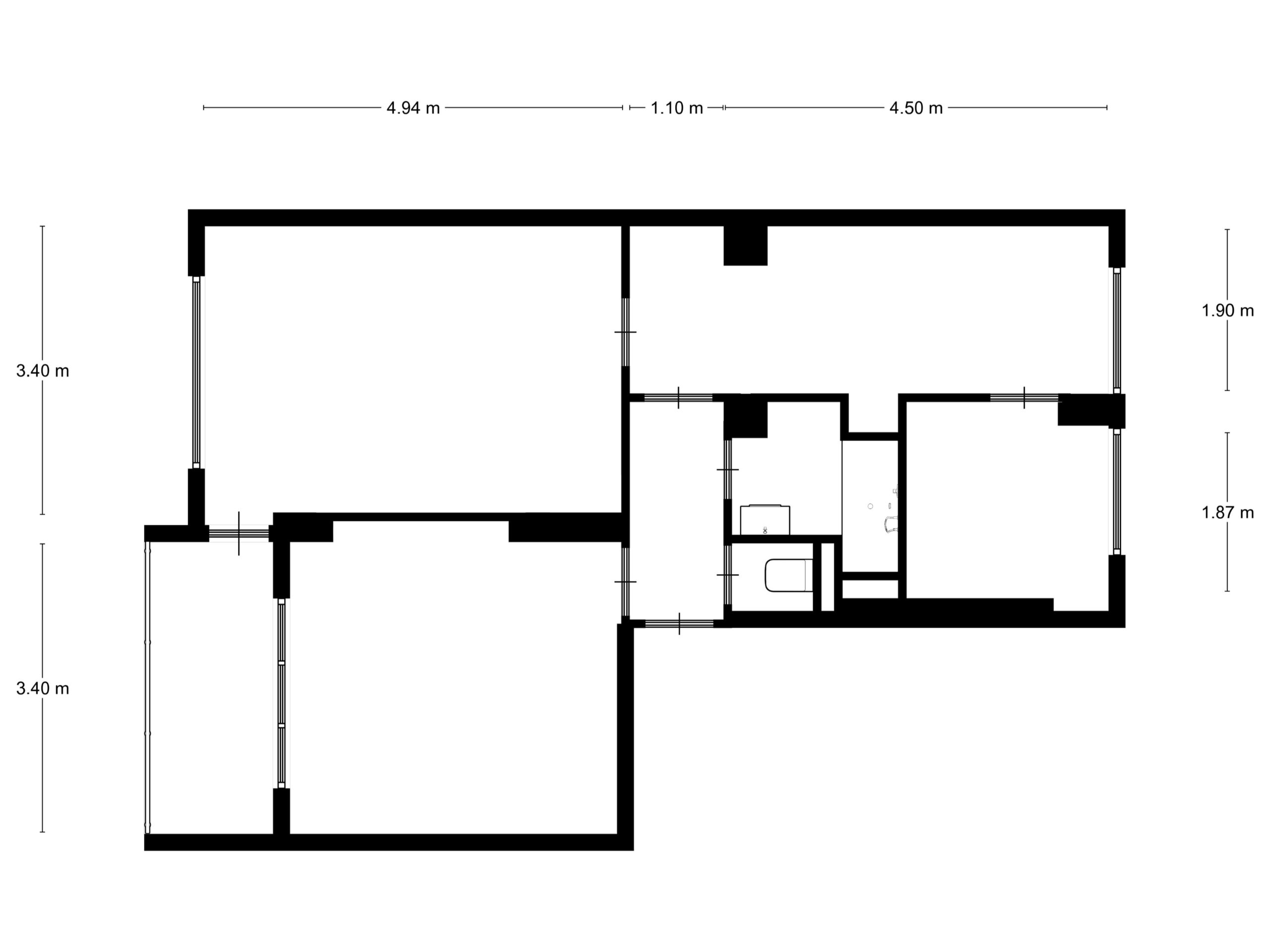
Jednotka je situovaná ve 2. nadzemním podlaží menšího, komorního cihlového domu. Stávající dispozice nabízí 3 místnosti (dvě ložnice a jedna menší místnost), kuchyň a chodbu, ze které je přístupná koupelna a samostatné WC.
Byt je v původním, udržovaném stavu a je možné jej okamžitě využívat pro vlastní bydlení či na pronájem. Výhledově by mu však slušela menší či větší rekonstrukce v závislostech na plánech budoucích majitelů. Prodávající si nechali renomovaným architektonickým ateliérem zpracovat velmi podařenou studii rekonstrukce, v rámci níž by došlo ke změně dispozice na standardní 3+kk. Studii Vám rádi ukážeme během prohlídek, může to být zajímavá a užitečná inspirace.
Zásadním benefitem je lokalita. Přímo přes ulici je vzdělávací kampus Olešská s mateřskou, základní i základní uměleckou školou. Jako bonus je přímo na proti domu také Škoda-Icerink, největší veřejná bruslařská plocha v Praze.
V pěší dostupnosti jsou další standardní služby a také několik variant MHD. Zastávka autobusu Sídliště Zahradní město je přímo před domem, stanice metra i autobusu Skalka i stanice tramvaje jsou pak do 10 minut chůze.
V případě zájmu o více informací nás neváhejte kontaktovat. Budeme se těšit na prohlídce.

