Zájemcům, kteří hledají bydlení v klasickém cihlovém domě, v atraktivní části Prahy nabízíme bytovou jednotku 2+1 v Boleslavské ulici na Vinohradech.
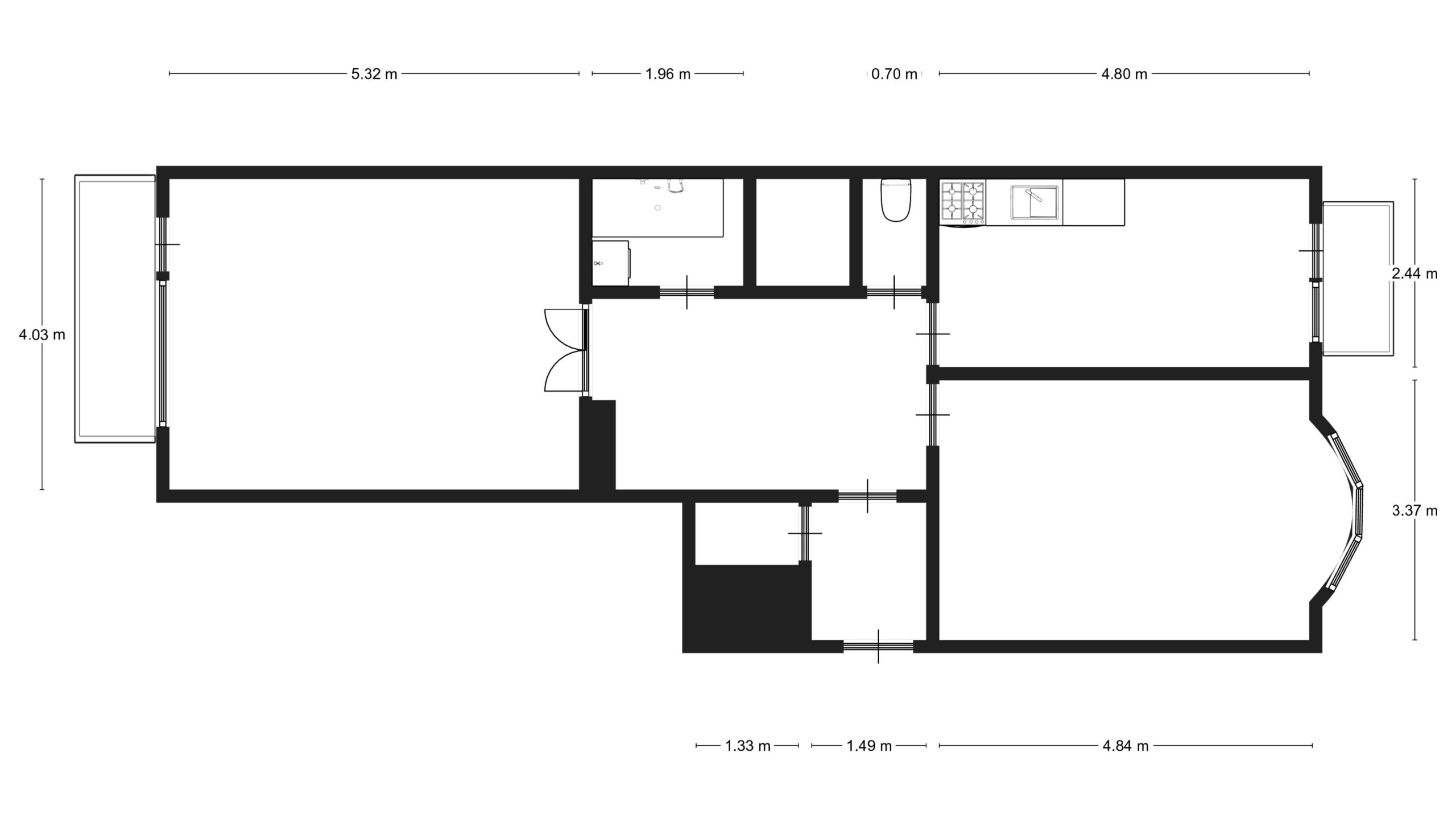
Byt je umístěn ve 2. nadzemním podlaží celkem 7. podlažního bytového domu. Nabízí klasickou dispozici 2+1. Kromě dvou pokojů je ve stávajícím řešení bytu ještě oddělené WC, koupelna a prostorná předsíň s komorou. Velkou výhodou jsou také dva balkóny, každý na jedné straně bytu. Byt je orientován na západ a východ a tak působí dostatečně světle a vzdušně. Jednotka je po částečné rekonstrukci, velmi pečlivě udržovaná a je možné ji okamžitě využívat. Původní a ceněné interiérové prvky jako dřevěné parkety na podlahách či dveře do pokojů a špaletová okna, to vše zůstalo zachováno a přináší to jedinečnou energii, a půvab. Vytápění a ohřev vody zajišťuje plynový kotel v bytě. Příslušenstvím bytu je i sklep v suterénu budovy.
Bytový dům je v dobrém technickém stavu. V posledních letech došlo k výměně stoupaček a také k výstavbě výtahu. Další investice jsou v plánu a SVJ na ně má nachystány vlastní prostředky ve fondu oprav.
Zásadním benefitem této nemovitosti je lokalita. Vinohrady jsou vyhledávanou a prestižní pražskou čtvrtí. I když jsou součástí nejužšího pražského centra, zachovávají si svoji autentickou a tolik oblíbenou atmosféru. Je zde bezpočet restaurací, kaváren, divadel a míst pro klidné vycházky či jiné sportovní vyžití.
V nejbližším okolí bytového domu najdete všechny potřebné služby a samozřejmě také obchodní centrum Flóra se širokou nabídkou obchodů i multikinem. Díky stanicím metra, tramvaje i autobusu se rychle a komfortně dostanete kamkoli potřebujete. Samotný dům je v boční ulici stranou ruchu dopravy a vy můžete si tak užívat ničím nerušené bydlení.
V případě zájmu o více informací nás neváhejte kontaktovat. Těšíme se na prohlídce.

