Dům se zahradou se nachází v klidné ulici Jihovýchodní I přímo v srdci unikátní zahradní čtvrti Starý Spořilov.
Předností je výborná dopravní dostupnost do centra metropole. V okolí domu je kompletní občanská vybavenost (školy, školky, obchody, restaurace). Stanice METRA C Roztyly je vzdálena 3 minuty jízdou MHD.
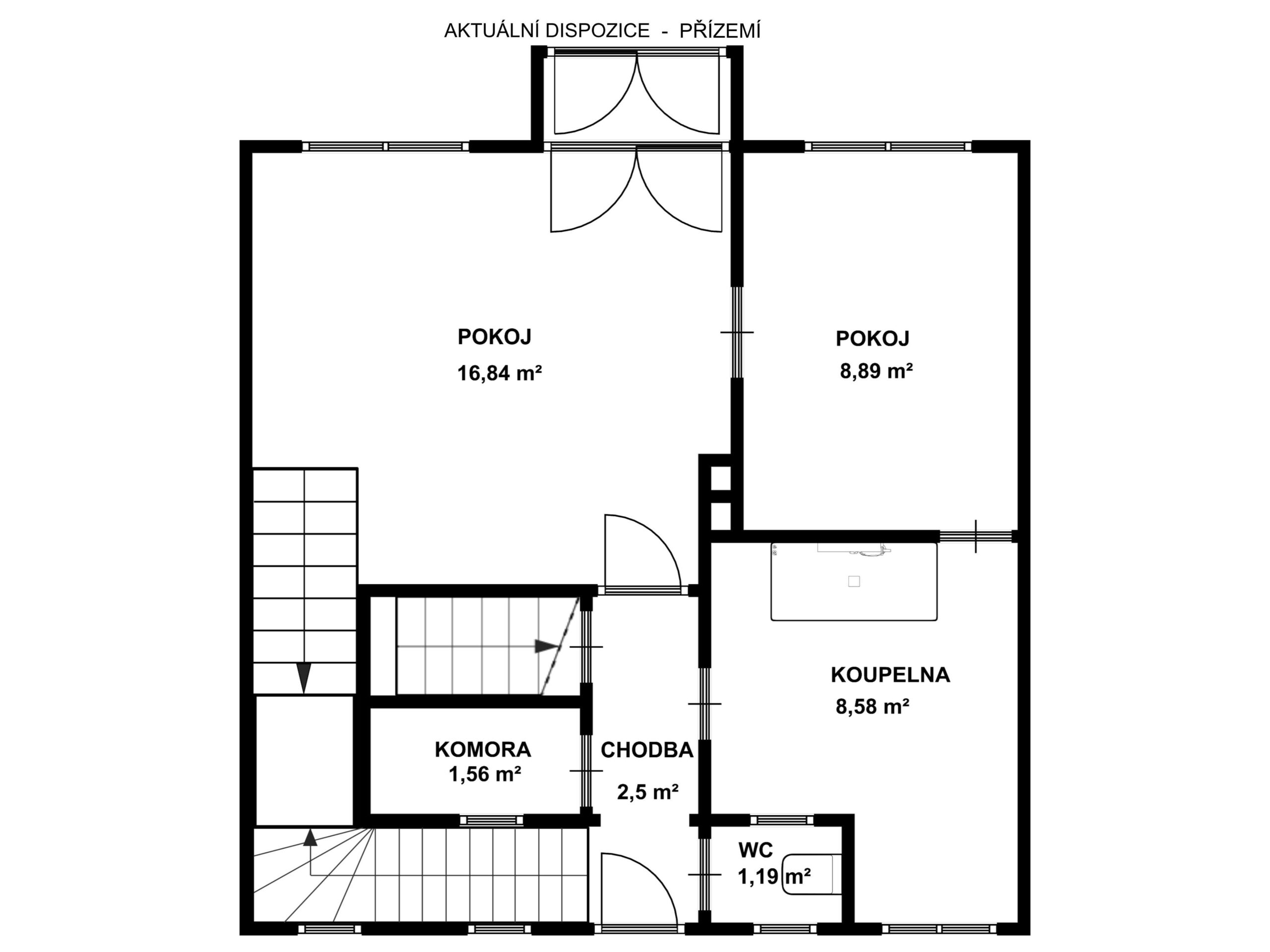
Dům se nachází na pozemku o celkové velikosti 158 m². Aktuální dispozice domu je 4+1 (94 m²). Ve spolupráci se stavební inženýrkou jsme pro vás připravili možné změny dispozice, které maximálně využívají daný prostor (inspirace ve fotogalerii).
Dům je částečně podsklepen. Má dvě obytná podlaží a půdu, která nabízí možnost zvětšit obytný prostor o další patro.
V 1. nadzemním podlaží je obývací pokoj se vstupem do zahrady, jídelna a kuchyně s koupelnou. U vstupu je samostatné WC a komora. Díky přístavbě vede schodiště do patra nejen z obývacího pokoje, ale také prakticky z předsíně. Schodiště se potkají na mezipodestě a pokračují do patra již jako jedno schodiště. Není tedy třeba neustále chodit přes obývací pokoj.
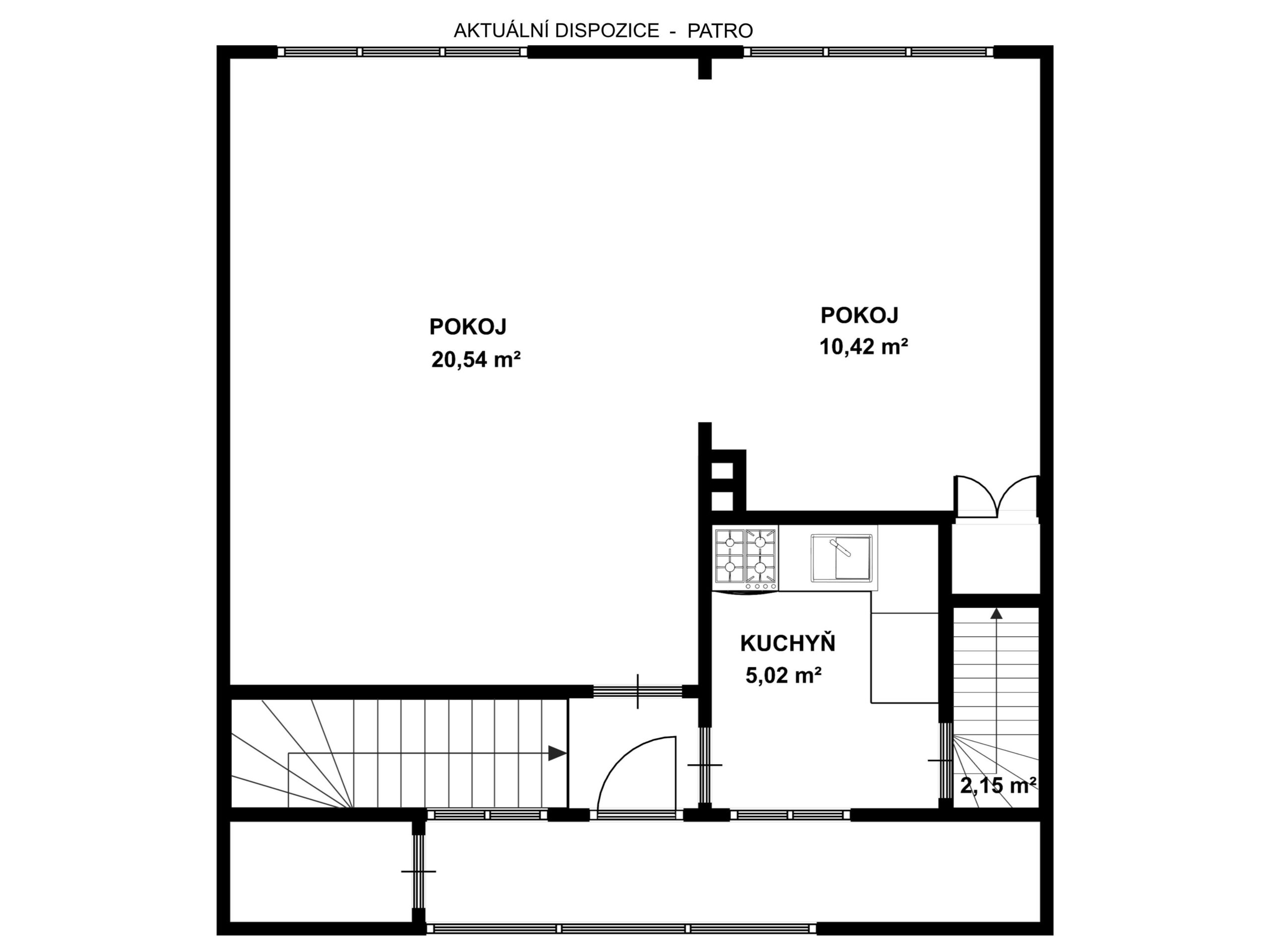
Ve 2. nadzemním podlaží se nachází velký pokoj, další pokoj a kuchyně. Je zde i menší balkón s pěkným výhledem do kraje.
3. nadzemní podlaží v současnosti slouží jako půda.
Okrasná zahrada se vzrostlou třešní je přístupná pro usedlíky i z jižní strany z pěší komunikace – technické uličky. Orientace na jih láká ke slunění.
RD je z větší části v původním udržovaném stavu. Byla provedena částečná rekonstrukce elektroinstalace s kabeláží z mědi, instalace ústředního vytápění včetně plynového kotle a dále přístavba schodiště, WC a spíže směrem do komunikace.
Spořilov je jedním z nejstarších zahradních měst na území Velké Prahy
Výstavba probíhala podle projektu architekta J. Barka a profesora J. Bertla v letech 1926 – 1929. Vytvořili urbanistické řešení pro pohodlný život uprostřed zeleně. Je zde použit unikátní způsob pojmenování ulic inspirovaný například americkými systémy.
Srdcem Starého Spořilova je protáhlé Roztylské náměstí s kostelem svaté Anežky České. Náměstí je příjemným relaxačním místem s dětským hřištěm a místy k posezení.
Díky své skvělé poloze nabízí Spořilov bydlení v příjemné lokalitě s fantastickou dostupností do centra Prahy. MHD se také lehce dostanete na Chodov (7 minut), do Michle, na Vinohrady (METRO A) i na Smíchov.
Volný čas můžete trávit u Hamerského rybníka na severu, v lesoparku Hostivař s meandry Botiče na východě, přímo na Roztylech láká k procházkám Michelský les.
Chcete bydlet v žádané lokalitě?
Chcete mít možnost vytvořit si harmonický domov podle svých představ?
Chcete žít v unikátní zahradní čtvrti?
Určitě ano.
Zavolejte pro více informací a domluvte si přesný čas prohlídky, rádi vás na této skvělé adrese přivítáme.






